raum | objekte | visualisierung | grafik | wir

memorium | mercure bar | etap branding | mercure zimmer | ausstellungen |
ekklesia 21+ | könig lear | dockisle | foyer kraiburg | marienhöfe

1 | 2 | 3 | 4 | 5 | 6 |  <


realisation
realisation
realisation

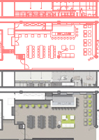
bar und café-lounge im 4-sterne-hotel
mehrfach veröffentlicht

alles zu seiner zeit: bar, café-lounge und pausenbüfett. diese öffentlichen bereiche im hotel mercure düsseldorf seestern können sich je nach tages- und nachtzeit wandeln. teilweise separiert oder räumlich verbunden gehen sie ein harmonisches miteinander ein. die raumatmosphäre wird geprägt von klaren rationalen formen und verspielten oberflächen. der hoteldirektor sieht seine vorstellungen „bestens erfüllt“ und die gäste waren vom ersten tag an begeistert.

zündform hat diesen umbau für die accor-hotellerie in den leistungsphasen 1 bis 7 übernommen (von grundlagen und vorplanung über entwurf und ausführungsplanung bis zur vergabe der bauaufträge).

vom foyer aus gesehen locken großzügige weiße ledersessel zur lounge-insel auf grünem hochflorteppich. in der gleichen richtung schließt sich die bar an – ein mit polsterpaneele ausgekleideter in die wand eingeschobener kubus. warmgraue stoffbespannung, schiefer-farbener kautschukboden, graphitfarbene thekenfront, schwarze barhocker. und mitten drin ein weißer kubischer riegel als barbrett. dahinter fällt ein café-image im superbreitformat ins auge, weiteres bleibt verborgen. gegen abend hier erstaunen: das barbrett wird zur hinterleuchteten ornamentik und das bild öffnet sich als klappe hinter der hochprozentiges erscheint.
zu dieser zeit setzen streiflichter an der wand ein weiteres ornament, gezeichnet aus glasperlen auf tapete, in szene. gäste fragen immer wieder nach bezugsquellen und auch der herr des hauses versuchte schon seine frau für eine solche wand im wohnzimmer zu gewinnen. vor den stilisierten akanthuslinien reihen sich schmale café-tische in länglicher form mit bequemen armlehnstühlen.
das büfett wird gerade von einem vorhang verdeckt. dieser sorgt hinterleuchtet für eine weiche illumination einiger plätze an bartischen. tagsüber werden hier die konferenzgäste verköstigt – zehn laufmeter büfett kommen zum vorschein. das glattweiße textil trennt dann zum übrigen raum. dort bleiben die andern gäste ungestört, auch dank vitras neuestem raumtrenn-geflecht.

realisation
entwurf 1
konzepte
entwurf 2